1821 McNeil Circle #D3, Dupont, WA 98327
- 3 beds |
- 2 baths
Condominium
Built in 2001
3,920sqft lot
1 car garage
$——/sqft
Listed 1 month ago
Property Description
This listing courtesy of Sue Larsen, NextHome South Sound
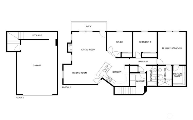
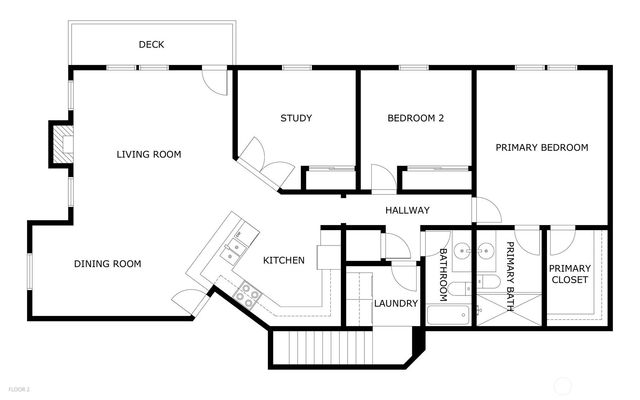
Great location in NW Landing/DuPont - Yehle Park Condominiums. Upper floor, corner end unit with amazing views of dedicated greenbelt from every window & from private, covered balcony. Kitchen features a raised breakfast bar, maple cabinets, newer dishwasher/stove/microwave. Vaulted ceilings enhance the spacious feel. Cozy gas fireplace. Spacious master suite with walk in closet. 3rd bonus room can be bedroom or office w/french doors. Separate utility room. Oversized one-car garage with additional storage area and a heated carpeted interior stairwell. Short stroll to downtown DuPont for coffee, library, dining. Enjoy all that DuPont has to offer, with parks, trails, playgrounds, and community activities with easy I-5 access.
- Listing Status:
- Pending
- Listing Office:
- NextHome South Sound : 253-292-1132
- Listing Agent:
- Sue Larsen : 253-292-1132
- MLS ID:
- 2432445

- General: Cooking-ElectricDryer-ElectricEnd UnitFireplaceFrench DoorsInsulated WindowsPrimary BathroomSprinkler SystemTop FloorVaulted Ceiling(s)Walk-In Closet(s)WasherWater Heater
- Appliances: Dishwasher(s)DisposalDryer(s)Microwave(s)Refrigerator(s)Stove(s)/Range(s)Washer(s)
- Laundry: Electric Dryer HookupWasher Hookup
- Flooring: LaminateVinyl PlankCarpet
- A/C: None
- Heating: Wall Unit(s)
- Fireplace: GasFireplaceFireplaces: 1
- Eco/Green Feature: Insulated Windows
- General: Metal/VinylWood Products
- Parking: Individual GarageOff StreetUncoveredParking spaces: 2
- Roofing: Composition
- General: Two
- HOA Amenities: Fire SprinklersHigh Speed Int AvailOutside EntryTrail(s)Common Area MaintenanceLawn ServiceSee Remarks498.0Monthly
- Originating MLS: nwmls
- School District: Steilacoom Historica
- County: Pierce
- Zoning: 9003590180
- View: TerritorialView
- Source: nwmls
This listing courtesy of Sue Larsen, NextHome South Sound
Monthly Payment
- Principal & Interest $
- Property Taxes $
- Home Insurance $
- VA Funding Fee $
Location
Schools Nearby
Chloe Clark Elementary School
1700 Palisade Blvd, Dupont, WA, 98327
Grades KG-3
0.63 miles away
Pioneer MIddle School
1750 Bobs Hollow Ln, Dupont, WA, 98327
Grades 6-8
0.50 miles away
Steilacoom High School
54 Sentinel Dr, Steilacoom, WA, 98388
Grades 9-12
6.89 miles away