876 Sifuentez Ct, Woodburn, OR 97071
- 3 beds |
- 3 baths |
- 1,396 sqft
Condominium
Built in 2026
3,049sqft lot
2 car garage
$240/sqft
Listed 1 month ago
Property Description
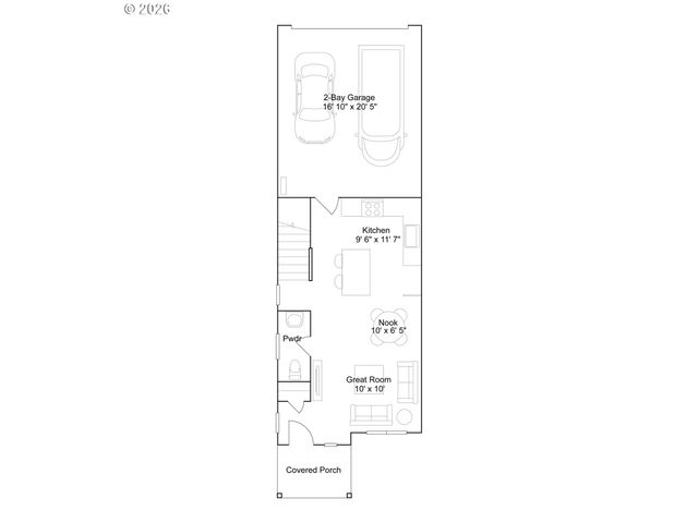
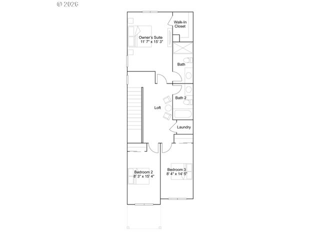
This new construction Smith Creek townhome sits on a corner lot and is conveniently located near I-5, just minutes from Woodburn Premium Outlets and close to parks, golf courses, schools, and vineyards, with easy highway access for smooth commutes. Community amenities include a dog park, multiple playgrounds, picnic areas, trails, and a basketball court. Enter the Pierce floor plan, offering two spacious stories designed for modern living. The first floor shares an open layout between the kitchen, nook and Great Room for easy entertaining with convenient access to a powder room. Upstairs are two secondary bedrooms surrounding a versatile loft that can serve as an additional shared living space or office. Tucked away at the back end of the second floor, an owner's suite waits for you to enjoy your own en-suite bathroom and a spacious walk-in closet. Other interior highlights include quartz countertops, shaker-style cabinets, luxury vinyl plank flooring, and luxury vinyl tile. "Everything's Included" package means that price of home includes Refrigerator, Washer & Dryer, A/C, and blinds! Photos are for illustrative purposes only and are sample photos from similar model homes - features & finishes may vary. Homesite # 681, move-in ready. Below-market rate incentives available when financing with preferred lender.
- Listing Status:
- Pending
- Date Added:
- February 25, 2026
- Data Last Updated:
- April 5, 2026 at 7:42AM
- Listing Office:
- Lennar Sales Corp : 503-476-3846
- Listing Agent:
- Robin Galvan-Taylor : 503-476-3846
- MLS ID:
- 497067204

- General: LaundryLo voc materialLuxury vinyl plankLuxury vinyl tileQuartzWallto wall carpetWasher dryer
- Appliances: DishwasherDisposalFree standing gas rangeFree standing refrigeratorGas appliancesIslandQuartzStainless steel appliance
- Basement: Crawl space
- A/C: Central air
- Heating: Forced air 95 plus
- Fireplace: Fireplaces: 0
- Eco/Green Feature: Car charging station readyDouble pane windowsForced air 95 plusSolar readyTankless
- General: Cement siding
- Style: Stories 2Modern
- Parking: DrivewayParking spaces: 2
- Roofing: Composition
- Windows: DoublePaneWindowsVinylFrames
- General: Concrete perimeter
- Road/Access: Paved
- HOA Amenities: CommonsFront yard landscapingManagement162.0Monthly
- Originating MLS: Regional Multiple Listing ServiceInc.
- County: Marion
- Zoning: TBDNew Construction
- Water: Public water
- Sewer: Public sewer
- Source: Regional Multiple Listing ServiceInc.
This listing courtesy of Robin Galvan-Taylor , Lennar Sales Corp
Monthly Payment
- Principal & Interest $
- Property Taxes $
- Home Insurance $
- VA Funding Fee $
Location
Schools Nearby
Heritage Elementary School
440 Parr Rd, Woodburn, OR, 97071
Grades KG-5
0.24 miles away
Valor Middle School
450 Parr Rd, Woodburn, OR, 97071
Grades 6-8
0.14 miles away
Woodburn Success
610 Young St, Woodburn, OR, 97071
Grades 7-12
1.11 miles away






